Загрузка...

Разбивка участка

Разбивка участка

Новый участок под строительство коттеджа, как чистый лист бумаги. С чего начать его освоение? Очевидно, надо присмотреться к нему очень внимательно, исследовать все углы и закоулочки участка, при этом, мысленно располагая на нем коттедж, гараж, бассейн, сад, цветник и все другие прелести загородной жизни, о которых мечталось.

А теперь с небес к практическому воплощению своей мечты.

 

Оценка земельного участка

Для планирования работ по освоению участка, прежде всего, необходимо оценить его по ряду объективных характеристик и показателей. Обязательной оценке подлежат следующие данные участка:

  • рельеф местности, на которой расположен участок;
  • геометрические формы;
  • размеры;
  • общая архитектурная и планировочная структура коттеджного поселка;
  • тип грунта;
  • наличие грунтовых вод;
  • глубина промерзания грунта;
  • преимущественные сезонные ветры;
  • положение участка «север - юг»;
  • освещенность участка.

 

По результатам полученных объективных данных можно будет наметить перспективы по планированию участка и принять схему его разбивки на составляющие элементы.

 

Влияние характеристик участка на планировку (разбивку) коттеджной застройки

Давайте рассмотрим, как влияют основные характеристики участка на разбивку участка.

Рельеф участка

От профиля участка зависит очень многое. Это и расположение коттеджа, гаража, хоз построек, бани, бассейна, детской площадки, сада и т.д. В значительной степени он определяет стиль планировки участка, оборудование систем дренажа, водоснабжения, канализации, а также объемы земляных работ

В зависимости от величины уклонов участки делятся:

- равнинный, уклон менее 3%;

- малый, уклон 3 -8%;

- средний, уклон 8 -20%;

- крутой, уклон 20% и более.

Для объективного представления о профиле участка необходимо провести его геодезические исследования и составить карту (геодезический план) с нанесением горизонтальных отметок. На план наносятся: границы участка и красная линия; обозначаются стороны света (север - юг); контуры зданий; трассы подземных коммуникаций и другие данные для начала строительство.

Такой план готовят отделения главного архитектора района и бюро технической инвентаризации. На основании этого плана, разрабатывают проекты горизонтальной и вертикальной планировок участка, а также используют для разбивки участка на функциональные зоны.

Если участок относительно ровный, то геодезический план можно составить самостоятельно.

Форма участка

Формы участков очень разнообразные: прямоугольные; близкие к квадрату; прямоугольные вытянутые или узкие; закругленные угловые; в форме буквы «г»; треугольные и др. варианты. Форма участка определяет стиль планирования участка.

Архитектурно-планировочная структура коттеджного поселка

Структура оказывает свое влияние на архитектуру коттеджа и планировку участка. Строго придерживаясь общепринятого архитектурного стиля коттеджного поселка, возможно, придется пойти на какие - либо уступки от ранее задуманных планов.

Тип грунта, уровень грунтовых вод, глубина промерзания грунта

Эти характеристики являются одними из основных показателями для строительства коттеджа и других строений на участке. От них зависит выбор типа фундамента коттеджа, его конструкция и архитектура здания в целом. Также по уровню грунтовых вод и рельефу участка определяется необходимость устройства дренажной системы. Характеристика грунтов позволяют обнаружить плывуны и зоны пониженной несущей способности. От вида грунта также зависит подбор плодовых и декоративных деревьев, кустарников, цветов и других зеленых насаждений.

Преимущественные сезонные ветры

Если на участке преобладают ветры северного направления, необходимо подумать о хорошей теплоизоляции коттеджа. Также при этом снижается урожайность садовых деревьев, и существует вероятность их вымерзания.

 

Расположение участка «север – юг»

В зависимости от освещенности участка в течение суток ориентацию расположения коттеджа можно выполнить таким образом, что будет обеспечено как максимальное присутствие солнца в некоторых его помещениях, так и затененность в других. От освещенности также будет зависеть ориентация расположение зон отдыха, бассейна, детской площадки, сада и т.д.

Функциональные зоны коттеджного участка

Для решения задачи расположения элементов участка, относительно друг друга, необходимо обеспечить разделение их функций. Размещая на участке всю намеченную инфраструктуру, необходимо учитывать ряд объективных данных. К ним можно отнести: расположение участка «север – юг»; преобладающее направление ветров; рельеф местности; расположение местного проезда; наличие водоема и растительности на участке и вокруг него; эстетика ландшафта; организация участка соседей; наличие грунтовых вод; состав почвы и другие факторы.

Для организации этой работы используют прием, называемый в архитектурной практике как «функциональное зонирование». Для этого сводятся в группы (функциональные зоны) элементы участка, близкие по своему предназначению. Для каждой группы элементов определяется оптимальное место на участке - функциональная зона. В границах этой зоны размещаются все элементы характерные для данной группы.

Для ясного представления общей структуры будущего коттеджного участка, до начала строительства, необходимо наметить на бумаге функциональные зоны. Упрощенно территорию участка можно разделить по назначению на несколько функциональных зон:

· въездная;

· жилая;

· приусадебная и хозяйственная служба;

· уединенного и активного отдыха;

· садово-огородная зона;

· пейзажная и другие.

[+dr.alt+]

 

Пример зонирования участка. А - въездная зона, где: 1 - входная калитка; 2 - розарий и цветник; 3 - парадный вход в коттедж; 4 – въезд; 5 - парковка на 3 машины; 6 - вход в котельную. Б -.коттеджная зона, где: 7 - коттедж; 8 - вход в кухню, столовую; 9 - зимняя терраса; 10 - малые формы (скульптура); 11 - фонтан; 12 - игровая поляна. В – хоз зона где: 13 - летний блок питания; 14 - отапливаемая теплица; 15 - питьевой колодец; 16 - малина; 17 - калитка в лес. Г - зеленый декоративный участок, где: 18 – водное зеркало; 19 - китайский мостик; 20 - японский сад; 21 - можжевельник; 22 - детская площадка; 23 - малина; 24 – фруктовые деревья; 25 – ягодные кусты. Д - соседиЕ - березовая роща.

Для выполнения оптимального зонирования важно рационально распределить общую площадь участка между объектами инфраструктуры. Обычно, под застройку отводят из общей площади 9 -11 %, под сад, огород, зону отдыха - 65-77 %, под хоз двор, проезды, дорожки, площадки и декоративное озеленение - 14-16 %. Положение каждой зоны на участке зависит от ее размеров, расположению относительно сторон света, рельефа участка.

Планирование процесс творческий и зависит от фантазии застройщика,

но при этом важно придерживаться общепринятых требований, применяя и учитывая опыт загородного коттеджного строительства.

При функциональном зонировании необходимо учитывать:

  • коттедж является основным объектом застройки, поэтому начинать разбивку участка следует с определения его местоположения, отчего будет взаимосвязано зависеть остальная планировка;
  • обычно хозяйственную зону выносят в глубину участка или более близко,

но при этом необходимо закрывать ее от взгляда посетителей декоративными посадками;

  • защищая участок от северных ветров (особенно в зимний период), лучше всего располагать морозоустойчивые декоративные деревья с северной или северо-западной стороны;
  • зону отдыха на участке располагают как компактно, так и в нескольких местах. Это зависит от того, какой вид отдыха предпочитают члены семьи активный или спокойный.

Беседка - место сбора всей семьи и гостей. Конечно, ее надо располагать в живописном затененном месте в окружении цветов.

Для оптимальной разбивки участка необходимо соблюдать некоторые основные принципы:

- рациональный выбор места для функциональных зон;

- минимальный отвод земли под застройку и твердые покрытия;

- соблюдать минимальные расстояния для перемещения между постройками.

 

Стили планирования

[+dr.alt+]

При разбивке участка, необходимо особое внимание уделить дизайнерским стилям планирования. От выбранного стиля оформления зависит гармоничное единение среды обитания человека и природы.

В дизайнерском искусстве существует достаточно много стилей. Мы рассмотрим три из основных стилей:

  • регулярный (геометрический);
  • ландшафтный (живописный).
  • смешанный стиль (элементы регулярного + ландшафтного стиля).

Регулярный стиль – применяется на ровной плоской местности. Здания, дорожки, садовые насаждения и другие элементы имеют геометрические 

формы. Этот стиль более удобен для выращивания любых растений. Деревья и кустарники располагаются в квадратном, прямоугольном или шахматном порядке, оставляя при этом дорожки прямолинейными и четкими.

Пример регулярного (геометрического) стиля.

Строгие геометрические формы ландшафта делают возможность получить правильное соотношение элементов относительно основной оси.

Водоемы, расположенные здесь, предпочтительно делать прямоугольными и симметричными. Дорожки и аллеи выполняют прямыми, ровными и четкими.

Ландшафтный стиль

Для этого стиля характерно:

[+dr.alt+]

- свободная посадка растений;

- сложный микрорельеф;

- извилистые линии дорожек;

- наличие различных форм деревьев и кустарника.

Пример ландшафтного (живописного) стиля.

Ландшафтный стиль делает участок живописным и привлекательным. Концепцией стиля предусматривается свободное, натуральное расположение элементов ландшафта и полностью исключает правильность форм и симметричность. В основном пересеченный рельеф участка определяет этот стиль.

Дорожки укладываются извилистых форм, без резких поворотов, материал

дорожек должен быть природного происхождения или имитирующий его.

[+dr.alt+]

Смешанный стиль

В нем соединяются элементы двух выше названых стилей.

В последние годы, это предпочтительный стиль при планировании коттеджных участков, который разнообразит выбор плана застройки

Пример смешанного стиля.

В загородном строительстве каждый стиль по-своему привлекателен. Выбор того или иного стиля зависит от вкуса, возможностей и замысла застройщика.

План - схема участка

Определившись со всеми объективными данными участка, выбрав стиль планирования и имея проект коттеджа, все, что задумано необходимо отразить на бумаге до начала стройки. Это даст возможность рассмотреть все варианты разбивки участка, и максимально исключить ошибки в процессе строительства. Для этого надо желательно составить план схему.

План схему без особого труда можно сделать самостоятельно. Достаточно иметь минимальный опыт в черчении, представление о масштабе и пространственное воображение - вот все, что для этого потребуется.

Как это сделать?

На лист бумаги необходимо нанесите план участка. Допустим - это 16 соток - квадрат со сторонами 40 на 40 метров.

Выберем удобный масштаб 1:100. То есть на схеме участок будет в размерах 40 на 40 см. Разобьем поле схемы на квадраты 1х1см. 1см. квадратный на схеме, в реальности будет соответствовать 1 м2  на участке.

Затем в таком же масштабе вырезаем из бумаги контуры коттеджа, строений, гаража, цветника, бассейна и т.д., то есть все то, что будет располагаться на участке. Теперь ищем на плане удобное место для расположения всех этих объектов с учетом рельефа участка, вышеперечисленные рекомендации и пожелания застройщика.

Можно сделать все это объемным. Для этого из бумаги, пластилина выполняют объемные макеты коттеджей, строений и других элементов инфраструктуры. Эти декорации помогут определить направление теней от строений, в каком месте нежелательно разбивать сад или клумбы и т.д.

Эти простые манипуляции по макетированию, пом

огут с большой достоверностью и точностью спланировать облик участка.

В плане обязательно указывают расположение:

  • коттеджа с парадным и дополнительными входами;
  • вспомогательных и хозяйственных построек (гостевого дома, гаража, сарая, душа, бани и т. д.);
  • детской и спортивной площадок, бассейна, мощеных дорожек;
  • ограждения участка;
  • ландшафтных элементов;
  • прохождение над участком линий электропередач, а под землей инженерных коммуникаций.

Зная расположение участка по сторонам света, легко правильно спланировать комфортные температурные и световые условия для коттеджа, строений, функциональных зон, зеленых насаждений, Нельзя забывать о направлении ветров, чтобы грамотно определить прогреваемые и защищенные зоны участка

Приняв за основу составленную план-схему, заказывают генеральный план участка и его согласование в полном объеме. Также она поможет грамотно контролировать работы по строительству.

Вертикальная планировка

Вертикальная планировка представляет собой ряд инженерных работ направленных на изменение, преобразование и, в конечном итоге, улучшение естественного рельефа местности. Это выполняется посредством срезки и подсыпки грунта в определенных местах.

Для более полного понятия технологии разбивки коттеджного участка необходимо рассмотреть цели вертикальной планировки.

Основная цель вертикальной планировки заключается в создании поверхностей на рельефе, соответствующих требованиям по застройке и инженерному обеспечению коттеджного участка.

Кроме этого, при вертикальной планировке должны решаться следующие задачи:

- исключить возможность его подтопления, оврагообразования и оползневых явлений;

- грамотно организовать сток поверхностных вод с территории участка;

- обеспечить допустимые уклоны рельефа для исключения водной эрозии поверхности;

- создать архитектурную привлекательность участка.

Проектирование вертикальной планировки территории проводится на всех стадиях разработки горизонтальной планировки, от генерального плана до проекта застройки.

Работы по вертикальной планировке предусматривают оценку рельефа, составление схемы планировки, разбивочные работы и изменение рельефа.

Разработка проектов вертикальной планировки требует наличия ряда исходных архитектурно - строительных данных, например, по возводимым зданиям, планировкам, геодезическим, гидрологическим, геологическим исследованиям и другие данные.

Оптимальным вариантом вертикального планирования считается возможность максимального сохранения существующего рельефа, зелёных насаждений и почвенного покрова участка.

Работа по вертикальной планировке эффективна, если соблюдаются следующие технико-экономические показатели:

- обеспечивается минимальный объём земляных работ;

- объём выемок и насыпей одинаковый (сохраняется баланс земляных масс). То есть снятый грунт в каком-либо месте используется для подсыпки в другом месте;

- дальность перемещения грунта (транспортного объёма) с участков выемок в насыпи минимальна.

Основным документом для вертикальной планировки является план организации рельефа и земляных работ.

 

Рекомендации по размещению коттеджа на местности с уклоном

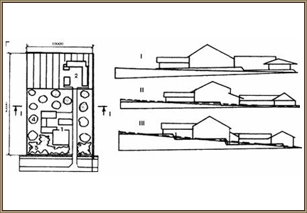
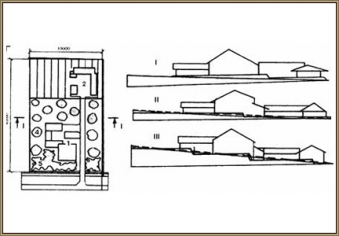
Коттедж размещается на участке с учетом имеющихся объективных характеристик. То есть, как говорят строители, дом надо "вписать" в участок, создав при этом единое гармоничное целое.

Существует два основных способа размещения зданий - без изменения или с изменением рельефа участка. В первом варианте, коттедж должен органично вписаться в окружающий ландшафт. Но, как правило, уже имеющийся проект здания потребует переработки цокольной и подземной частей здания, чтобы приспособить их к реальным рельефным условиям. Если рассматривается второй вариант, т.е. размещение коттеджа на ровную площадку, потребуется несколько нарушить природный рельеф, т.к. возникает необходимость в дополнительных планировочных работах.

При размещении здания на горизонтальной плоскости практически не возникает проблем. В этом случае достаточно решить только вопросы эстетики расположения дома и технические вопросы удобства подъезда и подхода к дому.

Однако, практически идеально ровных участков не существует, всегда будет присутствовать уклон местности какой либо величины. При этом, если здание возводится на склонах, требуется решать ряд вопросов с планировкой рельефа. Часто применяют комбинированное размещение зданий с организацией ровных площадок - террас (см. схему). Этот инженерный прием сводит к минимуму объема земляных работ и максимально снижает денежные расходы на строительство.

[+dr.alt+]

 

Схема террас (А) и применение откосов в коттедже и хозпостройках (Б): а - склон по длинной стороне; б - то же по короткой стороне; в - то же по диагонали участка;

1 - жилой дом (коттедж); 2 - хозблок (или гараж); 3 - зона коттеджа; 4 – фруктовые деревья; 5 - грядки; 6 - ландшафтный сад.

 

Примечание: терраса это горизонтальная площадка вдоль склона, образованная снятием или подсыпкой грунта. Профиль площадки обычно имеет наклон до 4 градусов, для организации стока паводковых и дождевых вод.

Продольную ось здания размещают параллельно, перпендикулярно или по диагонали относительно горизонталям склона.

Самое неудобное положение здания по диагонали, т.к. при этом вокруг него будут неодинаковые уровни земли, чем усложняется вертикальная планировка.

Дома без подвалов рекомендуется ставить на уклонах до 7%. Однако, как показывает практика, при уклоне 5 -7% уже необходима подсыпка грунта с подгорной стороны. При наличии в здании подвала, и уклонах до 12%, его, как правило, располагают параллельно горизонталям. При уклонах 7-8% вход в здание делают на любую сторону склона. При уклонах 8 -12%, вход рекомендуется устраивать на нагорную сторону, иначе часть комнат может оказаться заглубленными в грунт.

На крутых склонах (а в некоторых случаях и на средних) для укрепления грунта устраивают подпорные стенки.

[+dr.alt+]

 

Схема примера деления участка террасированием.

А – подъем к входу на участок; Б - высокая терраса; В – низкая терраса

 

Организация террас, сооружение подпорных стен должно всегда рассматриваться совместно с сооружением систем для стока поверхностных, паводковых и ливневых вод по склонам.

[+dr.alt+]

 

 

Примерная схема размещения участка на террасах. А - въездная зона, где 1-пандус или лестница, 2-цветник. Б - верхняя зона, где 3-коттедж, 4-пандус или лестница. В - нижняя зона, где 5-зона отдыха, 6-барбекю, 7- бассейн.

Выбор варианта размещения коттеджа необходимо рассматривать в комплексе с организацией всего коттеджного участка.

 

РАЗБИВКА ФУНДАМЕНТА КОТТЕДЖА НА УЧАСТКЕ

[+dr.alt+]

Теперь приступим к самой ответственной части строительного этапа коттеджа - к разбивке фундамента. Для его сооружения устанавливается обноска. Её главное назначение - обозначить и выдерживать 

нулевую отметку здания в течение всего срока строительства фундамента и перекрытий первого этажа коттеджа.

Примечание: В строительственулевой отметкой - «плюс, минус 0,000» считается уровень чистого пола первого этажа здания. Все элементы конструкции здания лежащие ниже обозначаются знаком «минус», выше - знаком «плюс».

От правильности разбивки осей фундамента коттеджа зависит долговечность здания в целом. При неправильном выполнении разметки от фундамента можно ожидать больших неприятностей, вплоть до его проседания, перекоса, завала на какую либо сторону. Это ведет к большим материальным затратам по исправлению ошибок. Вот уж пословица «Семь раз отмерь …» подходит к этой операции как нельзя точно.

 

Принципиальная схема разбивки зданий на местности

[+dr.alt+]

Перед началом строительства на участке проводятся подготовительные работы.

На строительной площадке выкорчевывают деревья и кустарники, скашивают траву и снимают плодородный слой почвы, который складируют отдельно для дальнейшего использования.

Выровненная и подготовленная к строительству площадка должна быть на 1,5 -2 м по всему периметру больше габаритов дома. При наличии на участке уклона, отрывают водоотводную траншею (со стороны склона), чтобы отвести дождевую воду и недопустить затопления котлована фундамента. Для правильной организации работ, на стройплощадке обустраивают места размещения материалов (см. примерную схему).

 

 

 

Примерная схема организации строительной площадки.

 

Рассмотрим два способа разбивки 

фундамента.

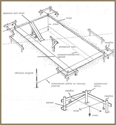
Первый способ

Первым этапом разбивки фундамента является определение его главных осей. Главные оси представляют собой перпендикулярные линии, проведенные от середины стен здания. Точка их пересечения и точка пересечений диагональных линий здания должны строго совпадать.

Вторым этапом является определение габаритных осей. Габаритные оси определяют размеры здания. Чтобы их обозначить, надо вынести на грунте две крайние точки длинной стены. Затем, на разбивочном чертеже обозначают расстояния между осями, а также расположение фундамента. Когда проведено трассирование основных параметров будущего здания, выполняют обноску.

Оси закрепляются на грунте деревянными кольями или металлическими штырями.

Обноска представляет собой конструкцию из двух деревянных столбов, между которыми прибита горизонтальная доска. Ее устанавливают на четырех углах здания с учетом углов естественного откоса котлована на расстоянии от его стен так, чтобы она была прочно закреплена в грунте на все время проведения работ. На досках обозначают данные по размерам котлована (траншеи) под фундамент, а также положение стен и т.д. Для разметки, в верхнюю грань доски забиваются гвозди (в местах соответствующих расположению котловану, стен и т.д.). Между гвоздями натягивается шнур (или тонкую проволоку).

Верхнюю часть досок выверяют в горизонтальной плоскости с помощью строительного уровня. Колья обноски устанавливают на расстоянии не менее 1,5 м от наружной стены будущего здания. Это делается для того, чтобы при рытье котлована не разрушить обноску. При наличии глубокого котлована, как правило, обноску выполняют сплошной.

С помощью теодолита на обноске с высокой точностью обозначают оси и углы фундамента. Если теодолит отсутствует, прямые углы можно определить «египетским треугольником».

Для определения прямого угла также используют еще один простой метод - пересечение двух кривых. Геометрия метода приведена на рисунке (см. ниже).

Чтобы убедится в правильности осей, выполняют замеры диагоналей прямоугольника. Они должны быть равными.

Если диагонали разной длины, необходимо делать корректировку в обноске.

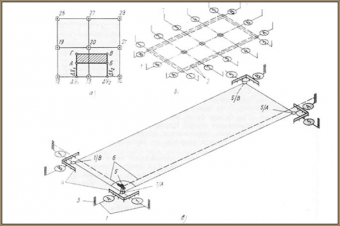
[+dr.alt+]

Общая схема обноски, где: 1-обноса угловая; 2-обноска средней стены; 3-строительный отвес; 4-шнур габаритов котлована; 5-наружная стенка котлована.

[+dr.alt+]

Крепление шнуров на обноске, где: 1-доска; 2-гвозди; 3-шнуры; 4-фунамент.

[+dr.alt+]

Схема разметка фундамента шнурами, где: 1- деревянная обноска; 2-шнур (проволока); 3-наружная стена котлована; 4-плиты фундамента.

[+dr.alt+]

Построение пересечения двух кривых для получения прямого угла, где: 1-исходная точка; 2-колышки; 3-пересечение дуг; 4-искомый перпендикуляр.

 

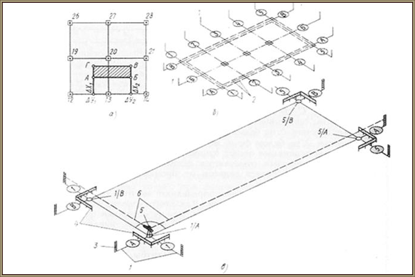
Второй способ

 

Для использования этого способа необходимо иметь геодезическую сетку строительной площадки. Как выполнить геодезический план участка собственными силами, изложено в Приложении 1.

Разметку на грунте положения фундамента надо начинать с определения в натуре двух крайних точек. Они обозначают положение длинной продольной оси. Точки эти обозначают от ближних отметок геодезической основы. При этом используется прямоугольные или полярные координаты, угловые или линейные засечки.

Прямоугольные координаты (см. рис. а) используют при наличии на стройплощадке строительной геодезической сетки (геодезические замеры с определенным шагом).

На разбивочном чертеже пронумеровываются вершины сетки, имеющие формы прямоугольников. Оси фундамента АБВГ устанавливаются параллельно сторонам строительной сетки.

Последовательность выполнения разбивки. По середине знаков 12 и 13 по отложенному расстоянию фиксируют в натуре точку «Р». От створа линии 12 - 13 в точке «Р» вычерчивают прямой угол. Перпендикулярно, по расстоянию откладывают и фиксируют точку А. В таком же порядке выполняют построение от знака 14 геосетки, и фиксируют точку Б. По расстояниям между осями получают точки В и Г.

Затем переносят основные оси (см. рис. б) и характерные точки фундамента на натуру и устанавливают обноску. Она предназначена для закрепления осей фундаментов, стен, колонн и других элементов здания на стройплощадке.

[+dr.alt+]

 

 

а-геодезическая сетка (схема разбивки) , б-разбивка на местности (осей здания), в- оси на обноске (перенесение), где: 1-оси; 2-контуры коттеджа; 3-контрольные знаки; 4-обноска (деревянная или инвентарная) ; 5- строительный теодолит; 6-луч теодолита (визирный). 1/А, 1/В, 5/А, 5/В пересечение осей (основных).

 

По внешнему очертанию будущего здания (2 - 3 м от сторон), натягивают шнур, образуя линии. В их створе устанавливают (расстояние 3 – 3,5м) стойки (металлические или инвентарные) строго вертикально. С внешней стороны к стойкам крепятся доски, верх которых выверяется строительным уровнем в горизонтальной плоскости.

На обноске обозначают и крепят основные оси фундамента, используя для этого теодолит. Теодолит устанавливают на точке расположенной в створе оси.

По визирной линии теодолита, на обноске наносят направления осей и маркируют их. Затем наносят линии стен, колон и т.д., отмеряя расстояние рулеткой от основных осей.

Для исключения нарушения обноски, важные оси дополнительно фиксируются на местности. На расстоянии 5 -10м от будущего здания монтируют временные контрольные знаки с нанесенными на них осевыми рисками. По ним выполняют контроль разбивки осей в течение всего строительства.

При многообразии вариантов планирования (разбивки) коттеджных участков, существуют принципиальные аспекты подхода к этому технологическому процессу, которых надо обязательно придерживаться. Варианты планировки зависят от геологических, геодезических и других объективных характеристик местности. Также многое зависит от возможностей и желания застройщика.

 

 

Приложение 1.

Составление геодезического плана участка

При отсутствии профессионального инструмента для геодезической съемки участка, можно самостоятельно изготовить простейшие приспособления из доступных материалов. На ниже приведенных рисунках хорошо видно их простое устройство.

[+dr.alt+]

 

 

 

Самодельный нивелировочный инструмент включает: 1-обычный строительный уровень; 2-самодельный окуляр; 3-мушка; 4-фото тренога; 5-наблюдаемый вид; 6-самодельная рейка геодезическая.

1. Строительный угольник-метр, где: а - сторона

угольника с нанесенными рисками через каждые 5см; б – перекладина для жесткости.

2. Визир-угломер, где: а – деревянная крестовина; б – иголки или мелкие гвозди без шляпок; в – деревянная стойка;

г – поверка визира на точность и разбивки осей (I, II, III - вешки; 1, 2, 3, 4 - иголки визира).

 

Как и из чего можно самостоятельно изготовить этот инструмент:

- строительный угольник-метр. Необходимо три струганные планки. Оптимальные размеры: сечение 25X60 мм; длина 750 мм. Они соединяются под прямым углом гвоздями. Свободные концы угольника на расстоянии 1 м, укорачивают и заостряют под углом. На одной из сторон угольника – катете, наносят деления (риски) через каждые 5 см.

- необходимо заготовить деревянные вешки в количестве четырех штук. Лучше их изготовить из тонких струганных реек круглого сечения длиной 2,0 м и диаметром 3,0 – 4,0 см. По всей длине вешки наносят деления по 20 см. Деления окрашивают белой и черного краской, чередуя цвета. Конец вешки заостряют;

- визир - это крестовина из двух струганных досок, закрепленные на деревянной стойке высотой 1,2 м. На одинаковом расстоянии от центра крепят четыре иголки или тонких гвоздя без шляпок. Стойку визира выставляют по строительному отвесу. Выверку точности визира осуществляют по трем вешкам. Их выставляют на расстоянии 4 - 5 м от прибора с трех разных сторон крестовины. Путем поворота визира на 90°, обеспечивают совпадение игл со всеми тремя вешками. В случае несовпадения производят регулировку визира, переставляя иглы.

Также необходимы: рулетка на 10 и более метров; планшетка с закрепленной миллиметровой бумагой; дооборудованный деревянный строительный уровень под нивелир (см. рисунок). Уровень выставляется в горизонтальной плоскости по пузырьку уровня. Установку самодельного нивелира осуществляют на треногу. Можно также использовать штатив от фотоаппарата.

Съемку участка проводят два человека. Начинают ее с разбивки двух взаимно перпендикулярных разбивочных осей (опорных линий). Там, где пересеклись эти оси - точка «О» является началом координат. Одна из осей, как правило, располагается параллельно границе участка или совпадать с ней. Другую ось проводят, используя для этого визир, установленный в нулевой точке так, чтобы она миновала все имеющиеся на участке сооружения. К этой второй оси «привязывают» каждую из характерных точек. Затем эти точки переносятся на чертеж. Одну из разбивочных осей необходимо закрепить, для чего по ее концам забивают в грунт вешки. Следующую вешку (третью), устанавливают против начала координат, отмечая ею другую разбивочную ось. Четвертую вешку, поступательно передвигая по разбивочной оси, находят необходимую точку, где и заглубляют ее в грунт. От нее отсчитывается расстояние как нулевой отметки до нужных точек на участке.

С помощью рулетки производят замеры расстояния до разбивочной оси. В итоге, каждая точка на плане будет обозначена двумя размерами. В процессе съемки эти размеры необходимо переносить на чертеж.

[+dr.alt+]

 

 

Съемка рельефа

[+dr.alt+]

 

 

 

План участка с разбивкой

колышками ключевых точек

[+dr.alt+]

 

Нанесение горизонталей на план участка.

От полученной высоты каждой точки,

экстраполируя (шаг 0,5м) наносят на план

горизонтали.

[+dr.alt+]

 

Рис. Пример технологии замера высот на участке.

 

При наличии на участке уклона, одновременно определяют перепады высот. Это выполняется в каждой измеряемой точке относительно нулевой отметки отсчета. Для этого используют самодельный нивелир и вешки с двухцветной разметкой. Перепад высот «Х» определяется как разница «Н» (высота измеряемой вешки) и «Но» (высота установки нивелира от уровня земли). «Х» = «Н» - «Но».

В конце съемочных работ определяют ориентацию участка на «север – юг» с помощью компаса. На плане ориентацию участка отмечают стрелкой, направленной на север.

Надо отметить, что проведение съемки свободного участка намного проще, чем участка с насаждениями и строениями. Все сводится к нанесению на план контуров территории, въезда на участок, уклонов рельефа, ориентации и размещения соседних усадеб. Все это выполняется на миллиметровке в масштабе 1:100 или 1:50.

 

 

Приложение 2

 

Организация рельефа территории участка на склонах под строительство коттеджа по сторонам света с обеспечением водоотводов. Рассмотрим возможные варианты.

[+dr.alt+]

 

 

Участок расположен на южном и восточном склонах, где 1-зона коттеджа, 2-зона хозпостроек, 3-плодовые кустарники и овощные культуры, 4-фруктовые деревья, 5-декоративные деревья. А - отвод ливневых вод. Б-дренажная система.

[+dr.alt+]

 

 

Участок расположен на южном, восточном и западном склонах, где 1-зона коттеджа и хозпостроек, 2- плодовые кустарники и овощные культуры, 3- фруктовые деревья, 4- декоративные деревья. А - отвод ливневых вод. Б-дренажная система.

[+dr.alt+]

 

 

 

Участок расположен на западном склоне при этом:

[+dr.alt+]

 

 

участок сориентирован длинной стороной вдоль склона с различной ориентацией по сторонам света: I - южный, восточный, западный склон. Проводят работы по выравниванию рельефа; II – северный склон. Организуют не высокие террасы; III – уклон 7 и более процентов. Организуют террасы.

[+dr.alt+]

 

Участок расположен на северном склоне. При этом планируется раздельное расположение коттеджа и хозпостроек. А – отвод ливневых вод хоздвора. Б – ливневые стоки. 1-зона коттеджа, 2-хозпостроики, 3- плодовые кустарники и овощные культуры, 4 и 5- фруктовые и декоративные деревья.

[+dr.alt+]

 

 

Участок расположен на северном склоне. Планируется расположение коттеджа и хозпостроек в комплексе.

1-зона комплекса, 2- плодовые кустарники и овощные культуры, 3 и 4- фруктовые и декоративные деревья.